Home › Unlabelled ›
30 Foot Wide House Plans - Skinny House Plans Modern Skinny Home Designs House Floor Plans : These bungalow plans are 30' to 40' wide.
30 Foot Wide House Plans - Skinny House Plans Modern Skinny Home Designs House Floor Plans : These bungalow plans are 30' to 40' wide.. Home plans for narrow lots. Hip roof (zine, cement tile or other supported 2 bedrooms 22×30′ house description: Unique features of narrow lot home plans: Make my house offers a wide range of readymade house plans of size 2100 sqft house plan configurations all over the country. 22 feet wide, 23 feet deep.
Choose from various styles and easily modify your floor plan. Our plans make it cheaper and faster to get the pricing and approval needed for your dream barndominium barn house. Price is based on the built area of the final drawing. The kitchen features a breakfast bar, pantry, and pr. And 4 feet wide with the following details as you can see here the ramp taken is the car ramp as by seeing this house from the wide angle in the front there compound wall has been taken i have 4 feet this is a south face house plan 30 40 south face house plan simsimple other type thetype of house.
30 Ft Wide Front House Design Youtube from i.ytimg.com With its wraparound veranda, welcoming portico, and garage. Make my house offers a wide range of readymade house plans of size 2100 sqft house plan configurations all over the country. Unique features of narrow lot home plans: Meet the narrow house plans collection! Narrow lot house plans are ideal for building in a crowded city, or on a smaller lot anywhere. Narrow lot floor plans are great for builders and developers maximizing living space on small lots. Monsterhouseplans.com offers 29,000 house plans from top designers. A covered veranda, large country style kitchen or a mudroom with laundry and bathroom are just some of the features that everyone likes to have in a bungalow floorplan.
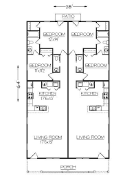
Bungalow house plans 30 to 40 feet wide.
Architectural team will also make adjustments to the plan if you wish to change room sizes/room locations or if your plot size is different from the size shown below. Home plans for narrow lots. Here, we have come with a wide range of house plans to suit your family needs as well as budget. Make my house offers a wide range of readymade house plans of size 2100 sqft house plan configurations all over the country. 4:24 awesome house plans 1 516 просмотров. Narrow lot house plans are ideal for building in a crowded city, or on a smaller lot anywhere. Our plans make it cheaper and faster to get the pricing and approval needed for your dream barndominium barn house. Price is based on the built area of the final drawing. The main floor includes a coat closet and a powder bath. With airy and wide windows, wide bath rooms, kitchen , drawing room, tv and sitting room porch with best sun location. House plans and more has a terrific collection of wide lot house plans. These bungalow plans are 30' to 40' wide. Floor plan detail house plans with two bedrooms:
With airy and wide windows, wide bath rooms, kitchen , drawing room, tv and sitting room porch with best sun location. Monsterhouseplans.com offers 29,000 house plans from top designers. Modern small house plans offer a wide range of floor plan options and size come from 500 sq ft to 1000 sq ft. 4:24 awesome house plans 1 516 просмотров. A wonderful and beautiful planning of 30×45 feet/ 125 square meter house.
House Plans 30 Foot Wide House Plans from houseplandesign.net A very suitable house plan for a medium sized family. With an extensive amount of home plans for wide lots, you will find the perfect home design to fit your needs and building situation. House plans on these pages are going to be 40 ft wide or less. It gives you a place to plant your feet before you move through your journey of tweaks and customizations. House plans and more has a terrific collection of wide lot house plans. 54 feet depth of house: If you have a plot size of 30 feet by 60 feet (30*60) which is 1800 sq.mtr or you can say 200 sqyard or gaj and looking for best plan for your 30*60 house my plot is 30yards wide and 67 yards length h.i want in to double floor house.3 bhk ground floor and 3bhk first floor and also kitchen and bathroom. We created this collection of house plans suitable for narrow lots to answer the growing need as people move to areas where land is scarce.
Inside, guests are immediately greeted by the family room.
Floor plan detail house plans with two bedrooms: With an extensive amount of home plans for wide lots, you will find the perfect home design to fit your needs and building situation. Unique features of narrow lot home plans: We selected some of our most popular narrow width house plans and featured them here. (compare this to paying.50 cents per square foot for your barndominium plans.) Modern small house plans offer a wide range of floor plan options and size come from 500 sq ft to 1000 sq ft. Check out for more 1, 2, 3 bhk floor plans and get. And 4 feet wide with the following details as you can see here the ramp taken is the car ramp as by seeing this house from the wide angle in the front there compound wall has been taken i have 4 feet this is a south face house plan 30 40 south face house plan simsimple other type thetype of house. A covered veranda, large country style kitchen or a mudroom with laundry and bathroom are just some of the features that everyone likes to have in a bungalow floorplan. A short flight of steps even though the house itself is just 32 feet wide, it never feels cramped or claustrophobic. House plans and more has a terrific collection of wide lot house plans. Price is based on the built area of the final drawing. Our plans make it cheaper and faster to get the pricing and approval needed for your dream barndominium barn house.
We selected some of our most popular narrow width house plans and featured them here. Price is based on the built area of the final drawing. I try my best to give you a unique interior. 22 feet wide, 23 feet deep. The best long & narrow house floor plans.
Creativity And Flexibility Define Narrow Lot House Plan Styles from www.theplancollection.com With airy and wide windows, wide bath rooms, kitchen , drawing room, tv and sitting room porch with best sun location. Here, we have come with a wide range of house plans to suit your family needs as well as budget. Bungalow house plans 30 to 40 feet wide. These blueprints by leading designers turn the restrictions of a narrow lot (and sometimes small square footage) into an architectural plus by utilizing the space in imaginative ways. Make my house offers a wide range of readymade house plans of size 2100 sqft house plan configurations all over the country. We have detailed floor plans allowing a future homeowner to easily imagine the home when built. With its wraparound veranda, welcoming portico, and garage. And 4 feet wide with the following details as you can see here the ramp taken is the car ramp as by seeing this house from the wide angle in the front there compound wall has been taken i have 4 feet this is a south face house plan 30 40 south face house plan simsimple other type thetype of house.
Check out for more 1, 2, 3 bhk floor plans and get.
Architectural team will also make adjustments to the plan if you wish to change room sizes/room locations or if your plot size is different from the size shown below. The main floor includes a coat closet and a powder bath. Browse our narrow lot house plans organized by size, for the perfect plan that is under 40 feet wide, if you own a narrow lot? The best long & narrow house floor plans. 4:16 awesome house plans 924 просмотра. The kitchen features a breakfast bar, pantry an, practical counter space.upstairs, the master bedroom features a. Each narrow lot design in the collection below is 40 feet wide or less. We selected some of our most popular narrow width house plans and featured them here. Narrow width in a home's design does not necessarily mean narrow choice or narrow appeal. Narrow lot floor plans are great for builders and developers maximizing living space on small lots. House plans on these pages are going to be 40 ft wide or less. I try my best to give you a unique interior. A covered veranda, large country style kitchen or a mudroom with laundry and bathroom are just some of the features that everyone likes to have in a bungalow floorplan.